- ホーム
- 医院レイアウトサクセスプラン
- 地域密着型
- ややま歯科クリニック
医院レイアウトサクセスプラン 地域密着型
- 私のデンタルクリニック
ややま歯科クリニック
機能審美で
患者さんの期待に応えたい
少し前まで山だったところに生まれた住宅地で多くの患者さんから支持される「ややま歯科クリニック」がある。当たり前に患者さんの将来を考えて治療していたら、自然に患者さんが増えてきたと弥山和誠院長は語られる。
開業6年で地域の顔
熊本県荒尾市は隣接する福岡県大牟田市とともに、かつては日本のエネルギーを支えた三井三池炭坑の町として栄えてきた。そんな荒尾市の新興住宅街に地域の人々から愛される「ややま歯科クリニック」がある。
「開業して6年目ですが毎日患者さんが沢山来てくれて大変です。本当はフランクでおしゃべりだけれど、最近は診療中は話す余裕がないですね」と院長の弥山和誠先生。とは言っても、昼休みの2時間を利用して必要な患者さんとはしっかりコミュニケーションをとられている。患者さんは30〜40歳代の弥山先生と同世代の人が中心だという。
※JR鹿児島本線荒尾駅前に設置された「万田抗」のオブジェ。かつての三井三池炭坑の町の名残を示す。
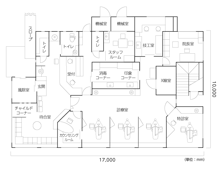
診療室の奥に設けられた個室タイプの特診室。口腔外科出身の院長はインプラントの症例も多い。

待合室の一角に設けられたチャイルドコーナー。患者さんは比較的若いご家族も多く、お母さんと一緒に子供たちも来院する。
診療室の奥に設けられた個室タイプの特診室。口腔外科出身の院長はインプラントの症例も多い。

待合室の一角に設けられたチャイルドコーナー。患者さんは比較的若いご家族も多く、お母さんと一緒に子供たちも来院する。
健康の元は口腔だと伝える
「患者さんによく言うことは、天然歯がどれだけ残っているかでアグレッシブさが違うよということです。ウォーキングなどで健康に気を遣っていても、食べるための咀嚼、歯、口が健康でないと本当の健康管理にならないと伝えています」。ここは都会と違って口腔内への関心が低い地域であった。
弥山先生はスポーツマンである。学生時代はラグビー部、最近はトライアスロンにも挑戦しようとしている。それだけに、しっかり食べられる歯があることが何より大切だと実感される。「とにかく基本は歯を守る。そのためにもカリエスやペリオにしない。そんな根本からお話をしていくと患者さんも歯の大切さを理解してくれます」。
コンセプトは機能審美
弥山先生が目指すのは「機能審美」。しっかり噛めて長持ちする機能を追求すれば審美も生まれるという考え方だ。「だから、どんな診療でもルーペ着用で徹底的に細かな機能にまでこだわります。その結果、ベストな修復ができて美しく仕上がると本当に気持ちいい。患者さんだけでなく私もやった!って感じですよ」
今年になってプロマックス3Dを導入された。難症例の患者さんにCT画像で説明すると理解が早いという。「術者も患者さんもお互いが納得いく治療が一番ですが、なかなか難しい。そんな時にCT画像で説明すると患者さんも先生に任せると言ってくれる。いい買い物でしたね」。
明るく開放感のある診療室で日々診療を続ける「ややま歯科クリニック」。友達感覚で気軽に寄れる歯科医院は、これからますます大きく発展しそうだ。

天井が高く採光のよい開放的な診療室。パーテーションで仕切られた診療ブースはゆったりとした広い幅で設計。セミオープンタイプであるが、チェアに座ると個室のように落ち着ける。4台のプランメカGコンパクトiが設置されている。




待合室も広くゆとりがある。診療室入り口脇のカウンセリングルームは昼休みに患者さんとコミュニケーションをとるために必要な空間であるという。最近導入されたプロマックス3Dが患者さんとのコミュニケーションに不可欠になってきた。

スポーツマンの院長は爽やかで格好いい。スタッフもみんな明るく、院内ラボの歯科技工士さんも含めてチーム医療で患者さんの診療にあたられる。スタッフの半分は開業時からの継続勤務とのこと。診療室のいい雰囲気が伝わってくる。

院長 弥山和誠 先生

スポーツマンの院長は爽やかで格好いい。スタッフもみんな明るく、院内ラボの歯科技工士さんも含めてチーム医療で患者さんの診療にあたられる。スタッフの半分は開業時からの継続勤務とのこと。診療室のいい雰囲気が伝わってくる。

院長 弥山和誠 先生