スマイル歯科はるひ野クリニック

スマイル歯科はるひ野クリニック
神奈川県川崎市麻生区黒川

精密かつ高水準の治療を提供し
地域とともに歩む歯科医院

「地域の方に十分な歯科治療が提供されているのだろうか?」
自らへの問いかけの答えが、「スマイル歯科はるひ野クリニック」の開院だった。

 

歯科医師としての素朴な疑問から開業を決意

 

 桜咲く4月初旬。神奈川県川崎市で「スマイル歯科はるひ野クリニック」が歩みを始めた。
 「歯科医師とスタッフが笑顔で患者さんを迎え、治療を終えたら患者さんが笑顔になるような歯科医院にしたい。そんな想いを医院名に込めました」
 そう語るのは院長の中村昇先生。もともとは開業を考えていなかったが、はるひ野地区は中村先生が長く住んでいる場所であり、この地に歯科医院が少なかったことが、ひとつのきっかけになったそうだ。
 詳しく尋ねると、はるひ野地区とその周辺にはファミリー向け集合住宅が並び、学校もある。2つの鉄道が通り、都心へのアクセスも良好。また、定年退職後の人生を楽しむ人々の姿も見られる。こうした背景から歯科を必要とする人が幅広い世代で大勢いると推察できるが、絶対数として歯科医院が少ない。地域の方に十分な歯科医療を提供できているのか? 地域住民と歯科医療のレベルが合っていないのではないか? ……といった歯科医師としての素朴な疑問を抱き、それが次第に地域の歯科医療のレベルを引き上げる意志や使命感に変化していったのだという。

 

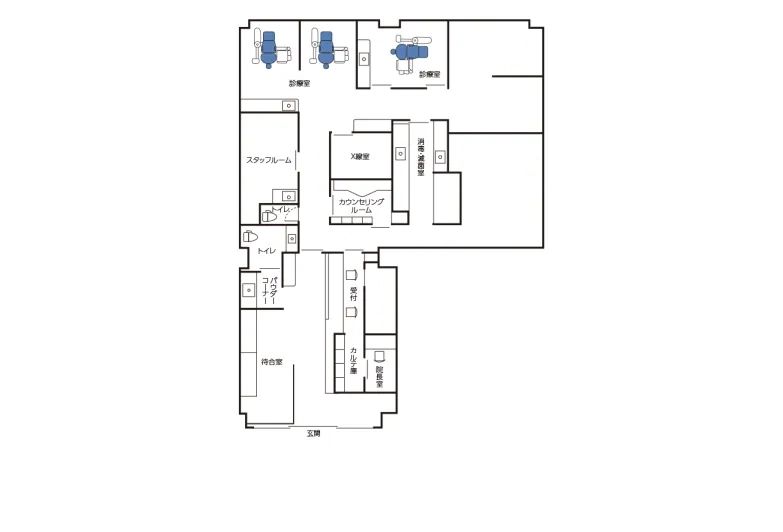
院内の設計は幅広い世代の患者さんを想定

 

 「スマイル歯科はるひ野クリニック」では、開業に至った考えのとおりに幅広い世代の患者さんを想定しており、それは院内設計にも表れている。
 バリアフリーを徹底し、手すりを設置したり、入口の幅を広めにしたりすることで、どんな患者さんでも受け入れやすくしている。車いすやベビーカーのまま入室できる個室診療室も設けた。また、トイレには乳幼児用のベビーチェアとおむつ交換台を設置。こちらもゆとりあるスペースが確保されている。
 一方、患者さんに的確に診療を提供するため、スタッフの動線にもこだわったという。消毒・滅菌や準備を行うバックヤードのエリアを医院の中央に置き、診療室はその周りを囲むように配置。さらに、受付とバックヤードまでの距離も短くするなどして、複雑になりがちなスタッフの動きがスムーズになるよう工夫した。

 

 

ユニットがつないだ縁

 

 院内のユニットには「イオム アクア」が導入されている。その選定において、迷いはなかったという。
 「これまでに国内外の主要メーカーのユニットはすべて触れてきました。ジーシーのユニットは一番シンプルであり、日本人の体形に合っていて患者さんが座りやすい。そして、私たち術者にとっても、ストレスを感じることなく使いやすいと感じています。それで、デンタルショーのジーシーブースで開業を相談しました」
 ユニットへの高い評価が中村先生とジーシーの架け橋となり、院内のX線CT診断装置、高圧蒸気滅菌器、自動精算機などにジーシーの製品を採用した、オールジーシーでの開業となった。

 

 

通いやすさと精密で高水準な治療で地域に貢献していく

 

 診療モットーは、“患者さん自身の歯をできるだけ長く使っていただくために精密で高水準な治療を提供すること”。
それを実現するうえでカギとなるのが、即日修復だと中村先生は語る。即日修復の研鑽に長年努めてきた中村先生は、その経験から歯を長く持たせる治療でもっとも良いのは即日修復だと考え、「スマイル歯科はるひ野クリニック」での診療の主軸に据えているそうだ。
 診療日については、より多くの人が通いやすいよう、また地域の歯科医療水準を高めたい考えから近隣の歯科医院の診療日も考慮し、日曜日と祝日に診療を行う方針に定めた。
 メンバーは歯科衛生士・歯科助手3名と中村先生の4名でのスタート。「スタッフはベテランぞろいなので、当面は想いを共有し、治療の方向性を合わせ、皆で歯科医院を作っていきたいです」とこれからの意気込みを表してくれた。
 小さな疑問から意志が実り、やがて地域を照らす大きな花となる。中村先生の取り組みは始まったばかり。「スマイル歯科はるひ野クリニック」の発展を心から祈念したい。