医療法人大木会 大木歯科医院 四日市

医療法人大木会 大木歯科医院 四日市
三重県四日市市諏訪栄町

大木(たいぼく)に集った若人たちの 新たな挑戦が始まる

三重県の大規模歯科医院「大木歯科医院」が四日市市に分院を開設。
患者さんの健康に寄与するべく、若き院長たちが力を尽くす。

 

技術+人間教育で人材育成若き院長たちに分院を託す

 

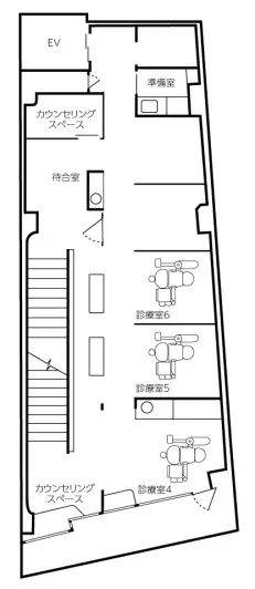
 三重県の中核都市・四日市市。その中心部の近鉄四日市駅から徒歩1分という好立地に「大木歯科医院 四日市」は開院した。鈴鹿市でスタッフ76名を抱える「大木歯科医院」の初の分院となる。
 理事長の笠井啓次先生にとって、四日市は特別な地だった。
 「20年前、本当は四日市で開業したかったのです。しかしどうしても都合が合わず、断念した経緯がありました」
 四日市に分院を作りたい、その思いは笠井先生にとって長年の悲願だった。ようやく形にできたのは、託せる人材が院内に育ってきたからだという。その人材こそ「大木歯科医院 四日市」の院長・山下陽次朗先生だ。
 「素直でプラス発想、勉強熱心なところに大きな可能性を感じました。山下先生なら当院の良さを正しく継承してくれると思い分院を託しました」
 山下先生は2020年に大学を卒業して「大木歯科医院」に入り、その後わずか2年半での院長抜擢となった。これを実現できた背景には、大規模医院である「大木歯科医院」の教育の土壌があるという。「技術はもちろん、歯科医師としてのあり方を徹底してたたき込まれた」と山下先生は振り返る。
 「歯科医師として幸せな人生を送るためには精神的な豊かさが必要で、それを得るにはできるだけ前向きに考えること、スタッフに対して感謝の気持ちを言葉で示すこと、こうした一つひとつが大事だと学びました」
 また、医院のスタッフも本院にて教育を受け、経験を積んだうえで「大木歯科医院 四日市」に来ており、高い技術力とモチベーションを兼ね備えた精鋭が揃っている。全幅の信頼を寄せるスタッフたちとスタートできたことが、山下先生の大きな力になっているそうだ。

 

 

優れたカウンセリングが患者さんの信頼を集める

 

 院内にはカウンセリング用スペースが4つもあり、患者さんの過去の治療経験や不安や悩みなどに、常に耳を傾けることを重視している。
 「専門的なカウンセリングは当然歯科医師が行わなければなりませんが、日常的な悩みなどは、院長よりも歯科衛生士や歯科助手のほうが話しやすいこともあるでしょう。当院のスタッフは全員、わかりやすく丁寧な説明やコミュニケーションのスキルなどを身につけています。それが当院最大の武器と言えるかもしれません」
 事実、患者さんへの応対が評判となり、口コミで患者さんが増えてきているそうだ。

 

 

院内の“標準”にジーシーを選んだ理由

 

 「大木歯科医院」では、本院、分院ともにすべてジーシーのユニットを使用している。
 「我々は業務の標準化を意識しており、誰が行っても、診査、診断、治療計画の立案、治療などを一定の高い水準で提供できるよう教育をしています。そのため、器材もなるべく統一しているのです」と笠井先生。ではなぜジーシーのユニットを標準としたのか。理由は大きく3つあるという。
 「1つ目に、ストレスなく使える操作性。2つ目に、故障が少ないこと。3つ目に、営業の方などの対応の良さです。加えてジーシーはグローバルに活躍する企業で、材料から機械まで様々な製品を扱っているため安心できるブランドイメージもありました」

 

 

患者さんの未来のために良質な歯科医療を提供

 

 分院を託された山下先生は、本院の理念を継承し、発展していくため、強い決意で臨んでいる。
 「当院は何十年先までもしっかり噛める、笑える。そんな患者さんのお口の環境作りをしていきたいと考えています。それを実現するため、機能性、審美性を兼ね備えた良質な歯科医療サービスを提供できるよう、努力を重ねていきます」
 「大木歯科医院」の名は、笠井先生がかつて恩師からいただいた“大きな木になれ青年よ、その下に多くの人が集えるように!”という言葉に由来する。いま「大木歯科医院」という大木に仲間たちが集い、患者さんの未来のための新たな挑戦が始まっている。